Komfortowy dom z 2 garażami i ogrodem Nowy Sącz
- [31.1. 2026]Usuń/ Edytuj/ Pozycjonuj




























Komfortowy dom rodzinny z dwoma garażami i wyjątkowym ogrodem w prestiżowej dzielnicy Nowego Sącza.
Odkryj idealne miejsce dla swojej rodziny w przestronnym i eleganckim domu jednorodzinnym, położonym w cenionej dzielnicy Nowego Sącza przy ul. Juranda. Z powierzchnią użytkową 245 m2 i dwoma wygodnymi garażami, nieruchomość ta oferuje komfort i funkcjonalność na najwyższym poziomie.
Dom zbudowany i wykończony z materiałów najwyższej jakości z dbałością o każdy detal, zachwyca przemyślanym układem pomieszczeń i eleganckim wykończeniem. W 2024 roku wymieniono pokrycie dachu na trwałą blachodachówkę Alice, a na przełomie 2024 i 2025 roku przeprowadzono remont, obejmujący wymianę płytek w kuchni i korytarzu, cyklinowanie i olejowanie parkietu w całym domu oraz malowanie ścian. Dom wyposażony jest w dwuźródłowy system grzewczy: nową energooszczędną pompę ciepła wspieraną przez kocioł olejowy, co zapewnia komfort i bezpieczeństwo w każdych warunkach.
Wnętrze domu oferuje:
* Przestronną i jasną strefę dzienną na parterze:
* Nowoczesny salon z centralnie umieszczonym marmurowym kominkiem, połączony z jadalnią, z panoramicznym wyjściem na słoneczny taras (strona południowo-wschodnia), idealny na rodzinne wieczory i spotkania z przyjaciółmi.
* Funkcjonalną kuchnię od strony północno-wschodniej z dostępem do korytarza i jadalni, wyposażoną w solidne dębowe meble z kamiennym blatem.
* Gabinet idealny do pracy zdalnej lub jako dodatkowy pokój.
* Toaletę oraz łazienkę z sauną fińską, zapewniającą chwile relaksu.
* Przestronny korytarz i otwartą klatkę schodową.
* Komfortową strefę prywatną na piętrze:
* Cztery duże, jasne sypialnie zapewniające prywatność każdemu domownikowi. Z każdej sypialni jest wejście na przestronne balkony z drewnianymi balustradami. Balkony od strony wschodniej i zachodniej biegną przez całą szerokość domu.
* Praktyczną, dużą garderobę, która ułatwi organizację przestrzeni.
* Dużą łazienkę z wygodną wanną i prysznicem.
* Imponujący pokój fitness o powierzchni 49 m2, idealny dla aktywnych domowników.
* Dodatkową przestrzeń:
* Piwnice o powierzchni około 50 m2 pod połową domu.
* Praktyczny strych nad całym domem.
* Podcień, który łączy część mieszkalną domu z dwoma garażami.
* Podjazd przed garażami z pięcioma miejscami parkingowymi.
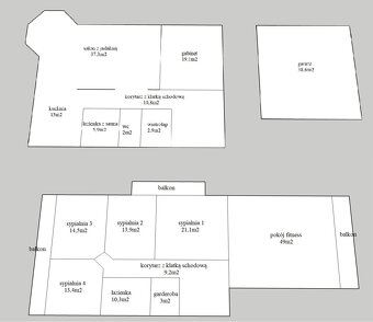
Szczegółowy rozkład pomieszczeń:
Parter:
wiatrołap – 2,9 m2,
korytarz – 9,2 m2,
toaleta – 2 m2,
łazienka z sauną – 5,9 m2,
kuchnia – 13 m2,
salon z jadalnią – 37,3 m2,
gabinet – 19,1 m2,
otwarta klatka schodowa – 10,8 m2.
Piętro:
korytarz – 9,2 m2,
garderoba – 3 m2,
łazienka – 10,3 m2,
sypialnia 1 – 21,1 m2,
sypialnia 2 – 13,9 m2,
sypialnia 3 – 14,5 m2,
sypialnia 4 - 13,4 m2,
pokój fitness – 49 m2.
Dom jest częściowo wyposażony i świetnie odpowiada również potrzebom dużej rodziny.
Ten wyjątkowy dom otoczony jes
Odkryj idealne miejsce dla swojej rodziny w przestronnym i eleganckim domu jednorodzinnym, położonym w cenionej dzielnicy Nowego Sącza przy ul. Juranda. Z powierzchnią użytkową 245 m2 i dwoma wygodnymi garażami, nieruchomość ta oferuje komfort i funkcjonalność na najwyższym poziomie.
Dom zbudowany i wykończony z materiałów najwyższej jakości z dbałością o każdy detal, zachwyca przemyślanym układem pomieszczeń i eleganckim wykończeniem. W 2024 roku wymieniono pokrycie dachu na trwałą blachodachówkę Alice, a na przełomie 2024 i 2025 roku przeprowadzono remont, obejmujący wymianę płytek w kuchni i korytarzu, cyklinowanie i olejowanie parkietu w całym domu oraz malowanie ścian. Dom wyposażony jest w dwuźródłowy system grzewczy: nową energooszczędną pompę ciepła wspieraną przez kocioł olejowy, co zapewnia komfort i bezpieczeństwo w każdych warunkach.
Wnętrze domu oferuje:
* Przestronną i jasną strefę dzienną na parterze:
* Nowoczesny salon z centralnie umieszczonym marmurowym kominkiem, połączony z jadalnią, z panoramicznym wyjściem na słoneczny taras (strona południowo-wschodnia), idealny na rodzinne wieczory i spotkania z przyjaciółmi.
* Funkcjonalną kuchnię od strony północno-wschodniej z dostępem do korytarza i jadalni, wyposażoną w solidne dębowe meble z kamiennym blatem.
* Gabinet idealny do pracy zdalnej lub jako dodatkowy pokój.
* Toaletę oraz łazienkę z sauną fińską, zapewniającą chwile relaksu.
* Przestronny korytarz i otwartą klatkę schodową.
* Komfortową strefę prywatną na piętrze:
* Cztery duże, jasne sypialnie zapewniające prywatność każdemu domownikowi. Z każdej sypialni jest wejście na przestronne balkony z drewnianymi balustradami. Balkony od strony wschodniej i zachodniej biegną przez całą szerokość domu.
* Praktyczną, dużą garderobę, która ułatwi organizację przestrzeni.
* Dużą łazienkę z wygodną wanną i prysznicem.
* Imponujący pokój fitness o powierzchni 49 m2, idealny dla aktywnych domowników.
* Dodatkową przestrzeń:
* Piwnice o powierzchni około 50 m2 pod połową domu.
* Praktyczny strych nad całym domem.
* Podcień, który łączy część mieszkalną domu z dwoma garażami.
* Podjazd przed garażami z pięcioma miejscami parkingowymi.
Szczegółowy rozkład pomieszczeń:
Parter:
wiatrołap – 2,9 m2,
korytarz – 9,2 m2,
toaleta – 2 m2,
łazienka z sauną – 5,9 m2,
kuchnia – 13 m2,
salon z jadalnią – 37,3 m2,
gabinet – 19,1 m2,
otwarta klatka schodowa – 10,8 m2.
Piętro:
korytarz – 9,2 m2,
garderoba – 3 m2,
łazienka – 10,3 m2,
sypialnia 1 – 21,1 m2,
sypialnia 2 – 13,9 m2,
sypialnia 3 – 14,5 m2,
sypialnia 4 - 13,4 m2,
pokój fitness – 49 m2.
Dom jest częściowo wyposażony i świetnie odpowiada również potrzebom dużej rodziny.
Ten wyjątkowy dom otoczony jes
|
| |||||||||||||||||||||||||||||||
Napisz wiadomość
Z kontaktu za pośrednictwem poczty elektronicznej może korzystać tylko zweryfikowany użytkownik.
Weryfikacja jest bezpłatna.
Twój numer telefonu *
Z kontaktu za pośrednictwem poczty elektronicznej może korzystać tylko zweryfikowany użytkownik.
Weryfikacja jest bezpłatna.
Twój numer telefonu *







