Parterowy dom koło Pabianic, Fotowoltaika, Solary, Smart
- [17.1. 2026]Usuń/ Edytuj/ Pozycjonuj
























Komfortowy dom parterowy z dopracowanym ogrodem w Dobroniu.
Przyjdź zaproponuj swoją cenę.
To dom, który trzeba zobaczyć, by poczuć jego unikalny klimat.
Jeśli szukasz miejsca, które zapewni Ci pełnię komfortu, bezpieczeństwo i codzienny relaks – ta nieruchomość spełni Twoje oczekiwania.
Nowoczesność i funkcjonalność. W tej nieruchomośći jest wiele UDOGODNIEŃ!!!!- koniecznie zapoznaj się z opisem, a sam się przekonasz.
Dom parterowy o przemyślanym układzie, stworzony z myślą o wygodzie wszystkich mieszkańców, również osób z ograniczoną mobilnością.
Nieruchomość została wyposażona w szereg udogodnień technicznych:
podgrzewany podjazd, dach i rynny
podgrzewana podłoga
klimatyzacja
zewnętrzne rolety antywłamaniowe
system monitoringu i alarm
instalacja fotowoltaiczna
solar do podgrzewania wody
własna studnia z systemem uzdatniania wody
dodatkowo możliwość organizowania kina w ogrodzie, jest na to przygotowany specjalny ekran
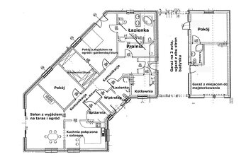
Dom składa się z:
przestronnego salonu z klimatyzacją i wyjściem do ogrodu
sypialni głównej z prywatną łazienką, garderobą i wyjściem na ogród
dodatkowego pokoju
widnej, oddzielnej kuchni do aranżacji
dodatkowo znjadziesz odzielny pokój połaczony z łazienką -idealne miejsce na biuro, lub pokój nastolatka
pralni i suszarni- duża przestrzeń
biura w pełni wyposażonego w zabudowane meble
kotłowni, piec wysokiej jakości
przestronnego hallu i wiatrołapu
Połączony z domem dwustanowiskowy garaż oraz pomieszczenie techniczne.
Garaż pomieści spokojnie 3 auta, a dodatkowo znajdziesz też dużo miejsca do parkowania przed nieruchomością i za.
Zjawiskowy ogród:
Prawdziwa oaza spokoju podzielona na przemyślane strefy:
strefa dla dzieci – bezpieczne miejsce do zabawy
strefa z ogniskiem – idealna na wieczorne spotkania
altana z grillem – miejsce spotkań i wspólnych posiłków
przestrzeń wypoczynkowa przygotowana pod jacuzzi
strefa techniczna z domkiem narzędziowym
Ogród jest nie tylko estetyczny, ale i funkcjonalny. Zainstalowano system zraszaczy, siatkę przeciw kretom,
elementy małej architektury oraz alejki z ozdobnymi nasadzeniami.
Solidna konstrukcja i jakość wykonania
Dom został oddany do użytku w 2009 roku. Zbudowany z pustaka ceramicznego z podwójnym murem,
dach pokryty gontem bitumicznym. Ogrzewanie gazowe zapewnia ciepło(niski koszt utrzymania!) w każdych warunkach.
Dom pozwala na swoją aranżację, według swojej wyobraźni.
Przyjdź zaproponuj swoją cenę.
To dom, który trzeba zobaczyć, by poczuć jego unikalny klimat.
Jeśli szukasz miejsca, które zapewni Ci pełnię komfortu, bezpieczeństwo i codzienny relaks – ta nieruchomość spełni Twoje oczekiwania.
Nowoczesność i funkcjonalność. W tej nieruchomośći jest wiele UDOGODNIEŃ!!!!- koniecznie zapoznaj się z opisem, a sam się przekonasz.
Dom parterowy o przemyślanym układzie, stworzony z myślą o wygodzie wszystkich mieszkańców, również osób z ograniczoną mobilnością.
Nieruchomość została wyposażona w szereg udogodnień technicznych:
podgrzewany podjazd, dach i rynny
podgrzewana podłoga
klimatyzacja
zewnętrzne rolety antywłamaniowe
system monitoringu i alarm
instalacja fotowoltaiczna
solar do podgrzewania wody
własna studnia z systemem uzdatniania wody
dodatkowo możliwość organizowania kina w ogrodzie, jest na to przygotowany specjalny ekran
Dom składa się z:
przestronnego salonu z klimatyzacją i wyjściem do ogrodu
sypialni głównej z prywatną łazienką, garderobą i wyjściem na ogród
dodatkowego pokoju
widnej, oddzielnej kuchni do aranżacji
dodatkowo znjadziesz odzielny pokój połaczony z łazienką -idealne miejsce na biuro, lub pokój nastolatka
pralni i suszarni- duża przestrzeń
biura w pełni wyposażonego w zabudowane meble
kotłowni, piec wysokiej jakości
przestronnego hallu i wiatrołapu
Połączony z domem dwustanowiskowy garaż oraz pomieszczenie techniczne.
Garaż pomieści spokojnie 3 auta, a dodatkowo znajdziesz też dużo miejsca do parkowania przed nieruchomością i za.
Zjawiskowy ogród:
Prawdziwa oaza spokoju podzielona na przemyślane strefy:
strefa dla dzieci – bezpieczne miejsce do zabawy
strefa z ogniskiem – idealna na wieczorne spotkania
altana z grillem – miejsce spotkań i wspólnych posiłków
przestrzeń wypoczynkowa przygotowana pod jacuzzi
strefa techniczna z domkiem narzędziowym
Ogród jest nie tylko estetyczny, ale i funkcjonalny. Zainstalowano system zraszaczy, siatkę przeciw kretom,
elementy małej architektury oraz alejki z ozdobnymi nasadzeniami.
Solidna konstrukcja i jakość wykonania
Dom został oddany do użytku w 2009 roku. Zbudowany z pustaka ceramicznego z podwójnym murem,
dach pokryty gontem bitumicznym. Ogrzewanie gazowe zapewnia ciepło(niski koszt utrzymania!) w każdych warunkach.
Dom pozwala na swoją aranżację, według swojej wyobraźni.
|
| |||||||||||||||||||||||||||||||
Napisz wiadomość
Z kontaktu za pośrednictwem poczty elektronicznej może korzystać tylko zweryfikowany użytkownik.
Weryfikacja jest bezpłatna.
Twój numer telefonu *
Z kontaktu za pośrednictwem poczty elektronicznej może korzystać tylko zweryfikowany użytkownik.
Weryfikacja jest bezpłatna.
Twój numer telefonu *



