Lokal biurowy 116 m² – inwestycja z najemcą
- [29.10. 2025]Usuń/ Edytuj/ Pozycjonuj


















Na sprzedaż – elegancki lokal biurowy | Drukarska 56
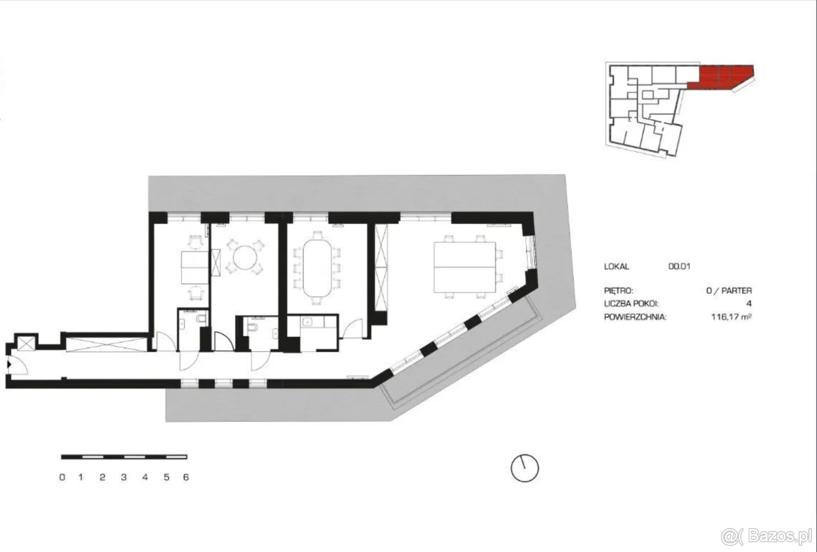
Na sprzedaż wyjątkowy lokal biurowy o powierzchni 116,17 m², położony na parterze nowoczesnego apartamentowca przy ul. Drukarskiej 56 we Wrocławiu.
Lokal posiada dwa niezależne wejścia – jedno bezpośrednio z ulicy, drugie przez reprezentacyjne lobby budynku z całodobową ochroną.
Rozkład pomieszczeń:
3 komfortowe biura
Przestronna sala konferencyjna
Kuchnia
2 łazienki z WC
Klimatyzacja
szafy i meble w zabudowie
Lokal jest w pełni wykończony, wyposażony oraz aktualnie wynajęty na okres 3 lat z możliwością przedłużenia najmu — to idealna propozycja inwestycyjna.
Dodatkowym atutem inwestycji jest taras widokowy na ostatnim piętrze, dostępny wyłącznie dla mieszkańców i użytkowników budynku.
Dodatkowo:
Możliwość zakupu 1 lub 2 miejsc postojowych w garażu podziemnym – cena 50 000 zł netto za jedno miejsce.
Cena sprzedaży lokalu z pełnym wyposażeniem: 14 000 zł/m² netto + 23% VAT
📞 Kontakt:
Sylwia Majchrzak
tel. 787 053 666
Opis dodatkowy dołączany w eksporcie
Na sprzedaż wyjątkowy lokal biurowy o powierzchni 116,17 m², położony na parterze nowoczesnego apartamentowca przy ul. Drukarskiej 56 we Wrocławiu.
Lokal posiada dwa niezależne wejścia – jedno bezpośrednio z ulicy, drugie przez reprezentacyjne lobby budynku z całodobową ochroną.
Rozkład pomieszczeń:
3 komfortowe biura
Przestronna sala konferencyjna
Kuchnia
2 łazienki z WC
Klimatyzacja
szafy i meble w zabudowie
Lokal jest w pełni wykończony, wyposażony oraz aktualnie wynajęty na okres 3 lat z możliwością przedłużenia najmu — to idealna propozycja inwestycyjna.
Dodatkowym atutem inwestycji jest taras widokowy na ostatnim piętrze, dostępny wyłącznie dla mieszkańców i użytkowników budynku.
Dodatkowo:
Możliwość zakupu 1 lub 2 miejsc postojowych w garażu podziemnym – cena 50 000 zł netto za jedno miejsce.
Cena sprzedaży lokalu z pełnym wyposażeniem: 14 000 zł/m² netto + 23% VAT
📞 Kontakt:
Sylwia Majchrzak
tel. 787 053 666
Opis dodatkowy dołączany w eksporcie
|
| |||||||||||||||||||||||||||||||
Napisz wiadomość
Z kontaktu za pośrednictwem poczty elektronicznej może korzystać tylko zweryfikowany użytkownik.
Weryfikacja jest bezpłatna.
Twój numer telefonu *
Z kontaktu za pośrednictwem poczty elektronicznej może korzystać tylko zweryfikowany użytkownik.
Weryfikacja jest bezpłatna.
Twój numer telefonu *