2 pokoje, 48.80m2, II piętro, stan deweloperski, os. Dobrzec
- [29.10. 2025]Usuń/ Edytuj/ Pozycjonuj





















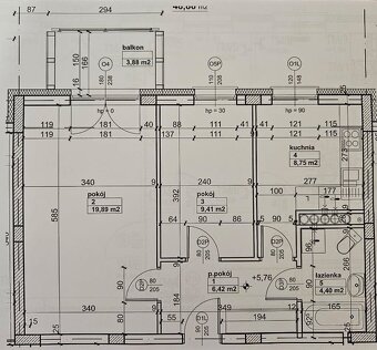
Przedmiotem oferty jest przestronne mieszkanie o powierzchni 48,80 m², położone na II piętrze nowoczesnego, ośmiopiętrowego bloku z windą, wybudowanego w latach 2018/2019 z cegły. Budynek znajduje się na terenie zamkniętego osiedla z kontrolowanym wjazdem poprzez szlaban, co gwarantuje komfort i bezpieczeństwo mieszkańców.
Układ pomieszczeń:
• salon z wyjściem na balkon,
• sypialnia,
• kuchnia,
• łazienka z WC,
• przedpokój.
Do mieszkania przynależy balkon, a w cenie ujęte są również: miejsce parkingowe oraz komórka lokatorska.
Standard i media:
• mieszkanie w stanie deweloperskim – daje możliwość indywidualnej aranżacji wnętrza,
• ogrzewanie i woda z sieci miejskiej,
• okna PCV,
• czynsz administracyjny: ok. 400–500 zł.
Lokalizacja i otoczenie:
Osiedle Dobrzec to jedna z najchętniej wybieranych lokalizacji w Kaliszu – dobrze skomunikowana z centrum miasta i trasą Kalisz–Ostrów Wlkp. W bezpośrednim sąsiedztwie znajdują się: szkoła, sklepy, punkty usługowe, ryneczek, stacje benzynowe oraz przystanki komunikacji miejskiej.
⸻
✅ Pełna własność z księgą wieczystą oraz udziałem w gruncie.
✅ Idealna propozycja zarówno do zamieszkania, jak i jako inwestycja pod wynajem.
Układ pomieszczeń:
• salon z wyjściem na balkon,
• sypialnia,
• kuchnia,
• łazienka z WC,
• przedpokój.
Do mieszkania przynależy balkon, a w cenie ujęte są również: miejsce parkingowe oraz komórka lokatorska.
Standard i media:
• mieszkanie w stanie deweloperskim – daje możliwość indywidualnej aranżacji wnętrza,
• ogrzewanie i woda z sieci miejskiej,
• okna PCV,
• czynsz administracyjny: ok. 400–500 zł.
Lokalizacja i otoczenie:
Osiedle Dobrzec to jedna z najchętniej wybieranych lokalizacji w Kaliszu – dobrze skomunikowana z centrum miasta i trasą Kalisz–Ostrów Wlkp. W bezpośrednim sąsiedztwie znajdują się: szkoła, sklepy, punkty usługowe, ryneczek, stacje benzynowe oraz przystanki komunikacji miejskiej.
⸻
✅ Pełna własność z księgą wieczystą oraz udziałem w gruncie.
✅ Idealna propozycja zarówno do zamieszkania, jak i jako inwestycja pod wynajem.
|
| |||||||||||||||||||||||||||||||
Napisz wiadomość
Z kontaktu za pośrednictwem poczty elektronicznej może korzystać tylko zweryfikowany użytkownik.
Weryfikacja jest bezpłatna.
Twój numer telefonu *
Z kontaktu za pośrednictwem poczty elektronicznej może korzystać tylko zweryfikowany użytkownik.
Weryfikacja jest bezpłatna.
Twój numer telefonu *
Ogłoszenia podobne
Mieszkanie o pow.32m2, II piętro, winda, ul. Legionów - [29.10. 2025]Na sprzedaż nowoczesne, 2-pokojowe mieszkanie o powierzchni 32 m², położone na II piętrze w bloku z windą przy ul. Legionów w Kaliszu.
Układ pomieszczeń:
• salon z aneksem kuchennym,
• sypialnia,
• łazienka z WC,
Do lokalu przynależy piwnica. Dla mieszkańców dostępny jest parking przy budy ...
300 000 zł
Kalisz
62-800
62-800
40 x
Zgłoś ogłoszenie Nieprawidłową kategorię Oceń użytkownika Usuń/Edytuj/Pozycjonuj
Mieszkanie o powierzchni 95m2, dwa balkony, Braci Niemojowsk - [28.10. 2025]Na sprzedaż przestronne, dwupoziomowe mieszkanie o powierzchni 95m² w bloku z cegły z 2009 roku, zlokalizowane na 3 piętrze na osiedlu Tyniec.
Nieruchomość posiada dwa balkony z widokiem na panoramę Kalisza oraz miejsce postojowe na ogrodzonym parkingu ze szlabanem.
Układ pomieszczeń:
* przestr ...
589 000 zł
Kalisz
62-800
62-800
62 x
Zgłoś ogłoszenie Nieprawidłową kategorię Oceń użytkownika Usuń/Edytuj/Pozycjonuj
Mieszkanie o pow. 52.90m2, II p., po remoncie, Os.Kaliniec - [28.10. 2025]Oferujemy przestronne, jasne mieszkanie o powierzchni 52,9 m², położone na drugi piętrze w czteropiętrowym bloku z wielkiej płyty po termomodernizacji (1968 r.).
Układ pomieszczeń:
• salon z otwartą kuchnią,
• dwie sypialnie,
• łazienka z WC,
• przedpokój.
Do mieszkania przynależy piwn ...
449 000 zł
Kalisz
62-800
62-800
67 x
Zgłoś ogłoszenie Nieprawidłową kategorię Oceń użytkownika Usuń/Edytuj/Pozycjonuj
Mieszkanie o pow. 37.20m2, III piętro, Al. Wojska Polskiego - [27.10. 2025]Na sprzedaż przytulne, dwupokojowe mieszkanie o powierzchni 37,2 m², położone na 3 piętrze w czteropiętrowym bloku z lat 70. przy Alei Wojska Polskiego w Kaliszu. Budynek po termomodernizacji, zadbany, z dostępem do ogólnodostępnych miejsc parkingowych wokół bloku.
Mieszkanie składa się z jasnego ...
270 000 zł
Kalisz
62-800
62-800
105 x
Zgłoś ogłoszenie Nieprawidłową kategorię Oceń użytkownika Usuń/Edytuj/Pozycjonuj
2 pokojowe mieszkanie, 32.18m2, III piętro, Os. Asnyka - [27.10. 2025]Na sprzedaż przytulne, dwupokojowe mieszkanie o powierzchni 32,18 m², zlokalizowane na 3. piętrze czteropiętrowego bloku z wielkiej płyty po termomodernizacji, na spokojnym osiedlu Adama Asnyka w Kaliszu.
Rozkład pomieszczeń:
• pokój dzienny
• sypialnia
• oddzielna kuchnia
• łazienka z WC
• ...
260 000 zł
Kalisz
62-800
62-800
103 x
Zgłoś ogłoszenie Nieprawidłową kategorię Oceń użytkownika Usuń/Edytuj/Pozycjonuj
2 pokoje,46.50m2, balkon, parter, blisko Centrum Kalisza - [27.10. 2025]Na sprzedaż komfortowe, dwupokojowe mieszkanie o powierzchni 46,5 m², zlokalizowane na parterze w zadbanym 4 piętrowym bloku z cegły z 1998 roku, przy ul. Majkowskiej – zaledwie kilka minut spacerem od ścisłego centrum Kalisza.
Układ pomieszczeń:
• Salon z aneksem kuchennym i wyjściem na balkon ...
399 000 zł
Kalisz
62-800
62-800
71 x
Zgłoś ogłoszenie Nieprawidłową kategorię Oceń użytkownika Usuń/Edytuj/Pozycjonuj
3 pokoje, 51.60m2, balkon, Ip, po remoncie, Os. Korczak - [24.10. 2025]Na sprzedaż funkcjonalne, świeżo wyremontowane mieszkanie o powierzchni 51,6 m², zlokalizowane na 1. piętrze w czteropiętrowym bloku z 2005 roku (cegła), na spokojnym i dobrze skomunikowanym osiedlu Korczak w Kaliszu.
Rozkład pomieszczeń:
• Pokój dzienny z aneksem kuchennym
• Dwie oddzielne s ...
499 000 zł
Kalisz
62-800
62-800
74 x
Zgłoś ogłoszenie Nieprawidłową kategorię Oceń użytkownika Usuń/Edytuj/Pozycjonuj
2 pokojowe mieszkanie o powierzchni 41.20m², II piętro, Cent - [23.10. 2025]Na sprzedaż mieszkanie o powierzchni 41,20 m², położone na drugim piętrz w czteropiętrowym bloku z cegły z lat 70, po termomodernizacji.
Nieruchomość znajduje się w ścisłym centrum Kalisza, ul. 3 Maja w sąsiedztwie szkół, przedszkoli, Galerii Tęcza, targowisk, parku miejskiego, plant oraz przystank ...
265 000 zł
Kalisz
62-800
62-800
81 x
Zgłoś ogłoszenie Nieprawidłową kategorię Oceń użytkownika Usuń/Edytuj/Pozycjonuj
Mieszkanie o powierzchni 53.20m2, balkon, winda, os. Dobrzec - [23.10. 2025]Na sprzedaż przestronne i funkcjonalne mieszkanie o powierzchni 53,20 m², położone na piątym piętrze w bloku z 1987 roku po termomodernizacji, zlokalizowane na popularnym i spokojnym osiedlu Dobrzec w Kaliszu.
Układ pomieszczeń:
* 2 niezależne pokoje,
* oddzielna kuchnia,
* łazienka,
* osobne ...
356 440 zł
Kalisz
62-800
62-800
81 x
Zgłoś ogłoszenie Nieprawidłową kategorię Oceń użytkownika Usuń/Edytuj/Pozycjonuj
Mieszkanie o pow. 62.30m2, balkon, III p.,os. Dobrzec - [22.10. 2025]Zapraszam do zapoznania się z ofertą przestronnego i zadbanego mieszkania zlokalizowanego na popularnym osiedlu Dobrzec w Kaliszu.
Lokal o powierzchni 61,3 m² znajduje się na 3. piętrze w 3-piętrowym bloku z cegły po termomodernizacji z 2000 roku. Budynek jest zadbany, z przyjaznym otoczeniem i duż ...
499 000 zł
Kalisz
62-800
62-800
97 x
Zgłoś ogłoszenie Nieprawidłową kategorię Oceń użytkownika Usuń/Edytuj/Pozycjonuj
