Nowa Kameralna Inwestycja/ Bliźniak/ Lutynia
- [16.10. 2025]Usuń/ Edytuj/ Pozycjonuj


























Nowoczesny dom w zabudowie bliźniaczej | lokal B1 | 139 m² | Garaż | Ogród | Lutynia
Bezpośrednio od dewelopera – 0% prowizji – bez podatku PCC!
Atrakcyjna cena na sprzedawany lokal – nie przegap okazji!
Termin oddania do użytku: IV kwartał 2025 r.
Przedstawiamy Państwu wyjątkową ofertę nowoczesnych domów jednorodzinnych w zabudowie bliźniaczej, położonych w spokojnej i dynamicznie rozwijającej się miejscowości Lutynia – zaledwie kilka minut od zachodnich granic Wrocławia.
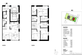
Domy zostały zaprojektowane z myślą o komforcie codziennego życia, funkcjonalności oraz energooszczędności. Każdy z lokali oferuje 139 m² powierzchni całkowitej, przemyślany układ pomieszczeń oraz prywatny ogród o powierzchni ok. 178 m²
Rozkład pomieszczeń:
Parter:
Przestronny salon z wyjściem na ogród, połączony z otwartą kuchnią – idealna przestrzeń do wspólnego spędzania czasu
Toaleta
Pomieszczenie gospodarcze
Wiatrołap z przejściem do garażu
Piętro:
Główna sypialnia z garderobą i prywatną łazienką
Dwie dodatkowe sypialnie
Garderoba
Druga łazienka
Najważniejsze atuty inwestycji:
Prosty, elegancki projekt z dużymi przeszkleniami, które zapewniają doskonałe doświetlenie wnętrz
Przemyślany układ funkcjonalny – część dzienna od strony południowej, pomocnicza od północy
Wysoka jakość materiałów: ściany międzylokalowe z silki (izolacja akustyczna), grube ocieplenia z wełny mineralnej i styropianu
Energooszczędne okna trzyszybowe (Uw 0,9 W/m²K) oraz drzwi z wysoką izolacją termiczną
Nowoczesne technologie:
Pompa ciepła i ogrzewanie podłogowe w całym domu
Wentylacja mechaniczna z odzyskiem ciepła (rekuperacja)
Instalacja przygotowana pod fotowoltaikę (PV)
Możliwość gromadzenia i wykorzystania wody deszczowej
Zachęcamy do kontaktu w celu umówienia prezentacji oraz poznania szczegółów oferty.
To idealny dom dla rodziny, która szuka spokoju, przestrzeni i wysokiego standardu wykończenia w pobliżu Wrocławia.
Sylwia Majchrzak tel: 787 053 666
Bezpośrednio od dewelopera – 0% prowizji – bez podatku PCC!
Atrakcyjna cena na sprzedawany lokal – nie przegap okazji!
Termin oddania do użytku: IV kwartał 2025 r.
Przedstawiamy Państwu wyjątkową ofertę nowoczesnych domów jednorodzinnych w zabudowie bliźniaczej, położonych w spokojnej i dynamicznie rozwijającej się miejscowości Lutynia – zaledwie kilka minut od zachodnich granic Wrocławia.
Domy zostały zaprojektowane z myślą o komforcie codziennego życia, funkcjonalności oraz energooszczędności. Każdy z lokali oferuje 139 m² powierzchni całkowitej, przemyślany układ pomieszczeń oraz prywatny ogród o powierzchni ok. 178 m²
Rozkład pomieszczeń:
Parter:
Przestronny salon z wyjściem na ogród, połączony z otwartą kuchnią – idealna przestrzeń do wspólnego spędzania czasu
Toaleta
Pomieszczenie gospodarcze
Wiatrołap z przejściem do garażu
Piętro:
Główna sypialnia z garderobą i prywatną łazienką
Dwie dodatkowe sypialnie
Garderoba
Druga łazienka
Najważniejsze atuty inwestycji:
Prosty, elegancki projekt z dużymi przeszkleniami, które zapewniają doskonałe doświetlenie wnętrz
Przemyślany układ funkcjonalny – część dzienna od strony południowej, pomocnicza od północy
Wysoka jakość materiałów: ściany międzylokalowe z silki (izolacja akustyczna), grube ocieplenia z wełny mineralnej i styropianu
Energooszczędne okna trzyszybowe (Uw 0,9 W/m²K) oraz drzwi z wysoką izolacją termiczną
Nowoczesne technologie:
Pompa ciepła i ogrzewanie podłogowe w całym domu
Wentylacja mechaniczna z odzyskiem ciepła (rekuperacja)
Instalacja przygotowana pod fotowoltaikę (PV)
Możliwość gromadzenia i wykorzystania wody deszczowej
Zachęcamy do kontaktu w celu umówienia prezentacji oraz poznania szczegółów oferty.
To idealny dom dla rodziny, która szuka spokoju, przestrzeni i wysokiego standardu wykończenia w pobliżu Wrocławia.
Sylwia Majchrzak tel: 787 053 666
|
| |||||||||||||||||||||||||||||||
Napisz wiadomość
Z kontaktu za pośrednictwem poczty elektronicznej może korzystać tylko zweryfikowany użytkownik.
Weryfikacja jest bezpłatna.
Twój numer telefonu *
Z kontaktu za pośrednictwem poczty elektronicznej może korzystać tylko zweryfikowany użytkownik.
Weryfikacja jest bezpłatna.
Twój numer telefonu *





